Skip to content
Commercial & Residential Projects
Exim Tower, Head Office, Gulshan
Location: Gulshan, Dhaka
Projects Details
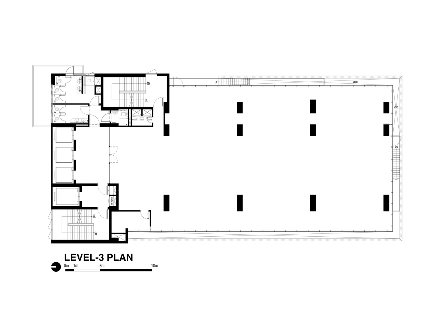
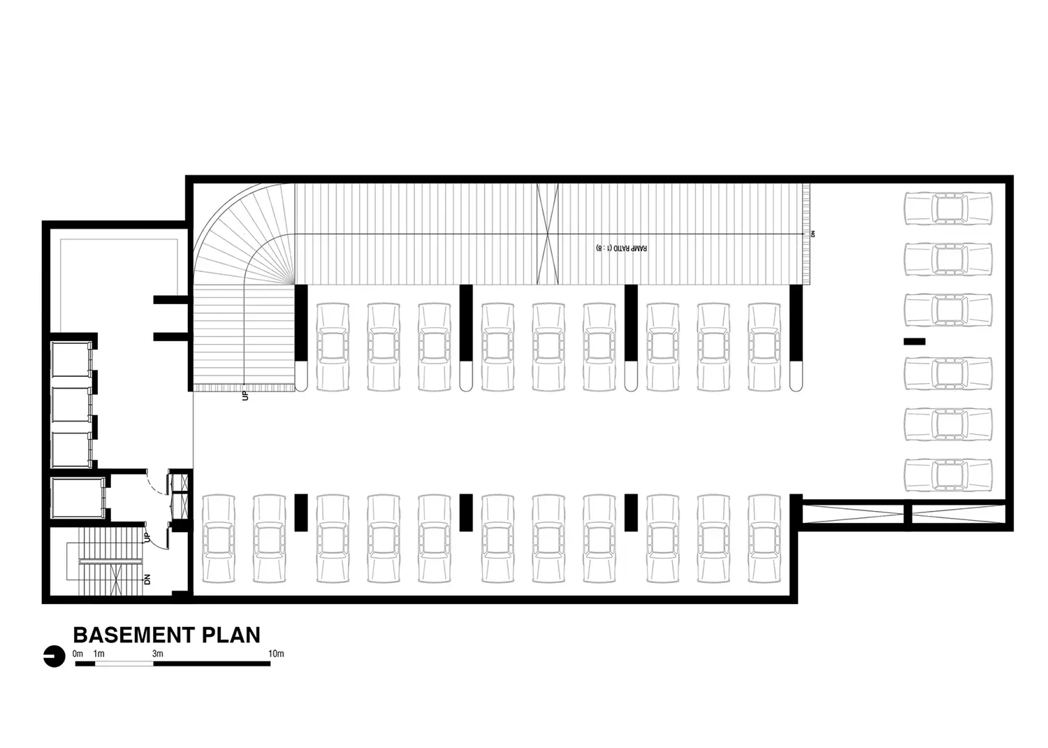
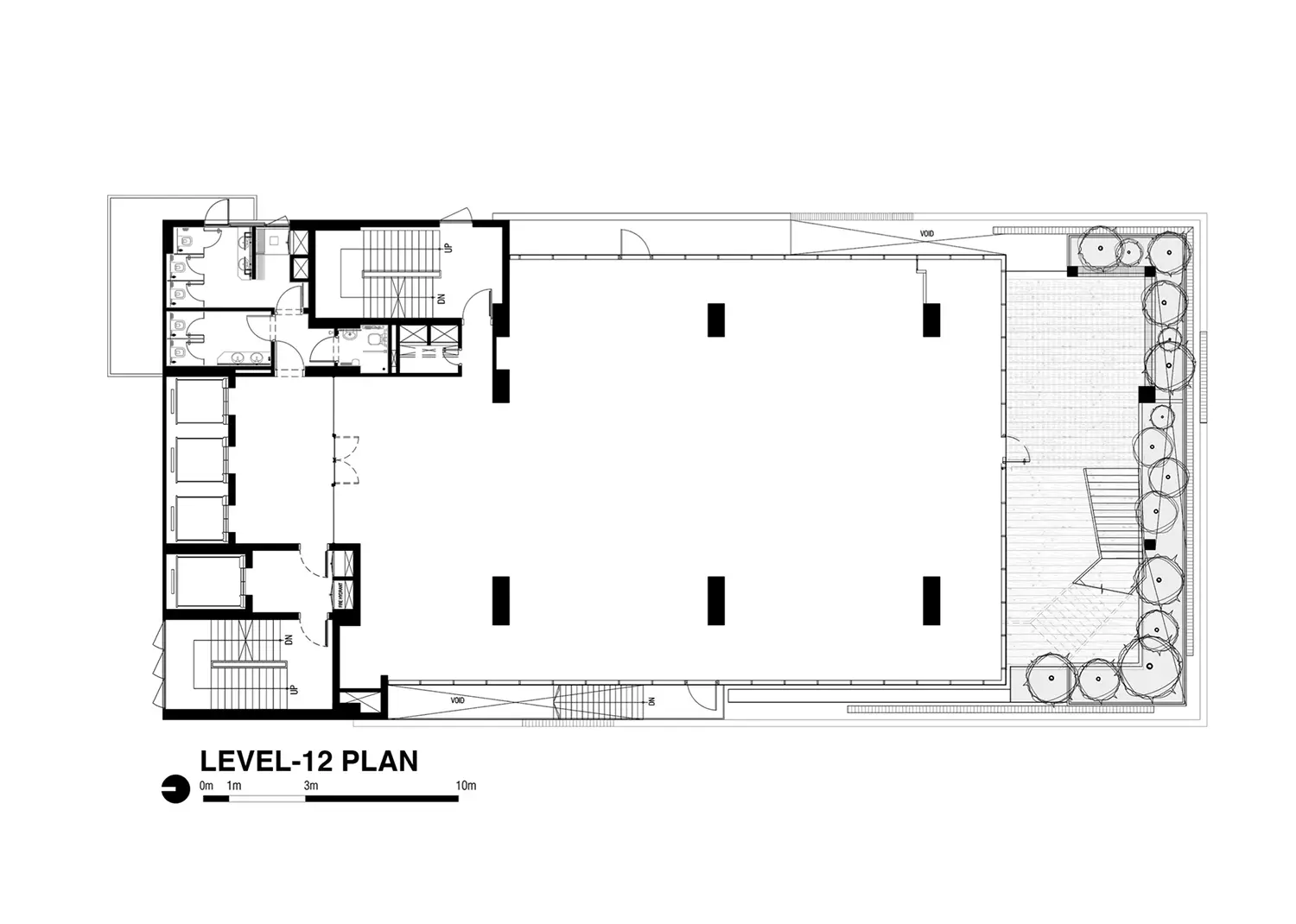
The Exim Bank’s headquarter is a commercial space. This tower, which housed the Exim Bank’s headquarters and a branch, aims to design that is more humanistic than obsessive. A tranquil water feature and natural landscape were designed on the ground, which leads to phenomenological architecture. A spacious workspace with ample natural light and operable windows on every level is a scope to reduce the artificial light and blow of fresh air for 3–4 months. A top deck has been designed to feature a wellness center and a pool for the rejuvenation of the users. A metal fenestration was created with enough depth for the screen and buffer. Additionally, an attempt was made with the stairs, connecting the different floor levels, to create this buffer zone. The diagonal louvers control solar gain for cooling requirements. The ground and mezzanine floors serve as the branch office. The segregated entry ensures proper separation of the different functional zones. This is a concrete beam-column framework. For climate-responsive design and reducing energy consumption, Low-E glass and BMS sensors were used. In parking, a parking management system is also used to ensure the efficient use of space. It is constructed using high-quality sourced materials.
Exim Bank
Gulshan, Dhaka
11470 sqm
Ar. Md. Iqbal Habib (Team Leader)
Ar.Md. Ishtiaque Zahir
Ar.Golam Mohiuddin Rimon
Ar.Nuruzzaman Srabon
Shariar Mohiul
Mohammad Shamsul Alam
Mohd. Fakhrul Alam
Sukumer Chandra Sarkar
2017-2022
Maruf Raihan