Commercial & Residential Projects
Revitalization of Banani Graveyard
Location: Banani, Dhaka
Projects Details
The Banani Graveyard and Mosque complex is recognized as a historically significant landmark in the heart of Dhaka. It is the final resting place of the three martyred leaders of our war of independence, the assassinated family members of the Father of the Nation Bangabandhu Sheikh Mujibur Rahman and many other noteworthy intellectuals of the country. The design philosophy for the project was to remove the stigma associated with graveyards, by designing a place for people to contemplate the transition of earthly life to eternity. The mosque, office, and other supporting facilities are designed to blend with the surrounding landscape of the graveyard.
Carefully crafted details are integrated throughout the project to uphold the spirituality and religious aspirations. To further manifest this concept, materials are carefully chosen considering their color, texture and tactility. The corridors and walkways are remodeled with drainage, planters and sitting areas. Intricately lit religious inscriptions along the wall create a somber ambiance in the graveyard.
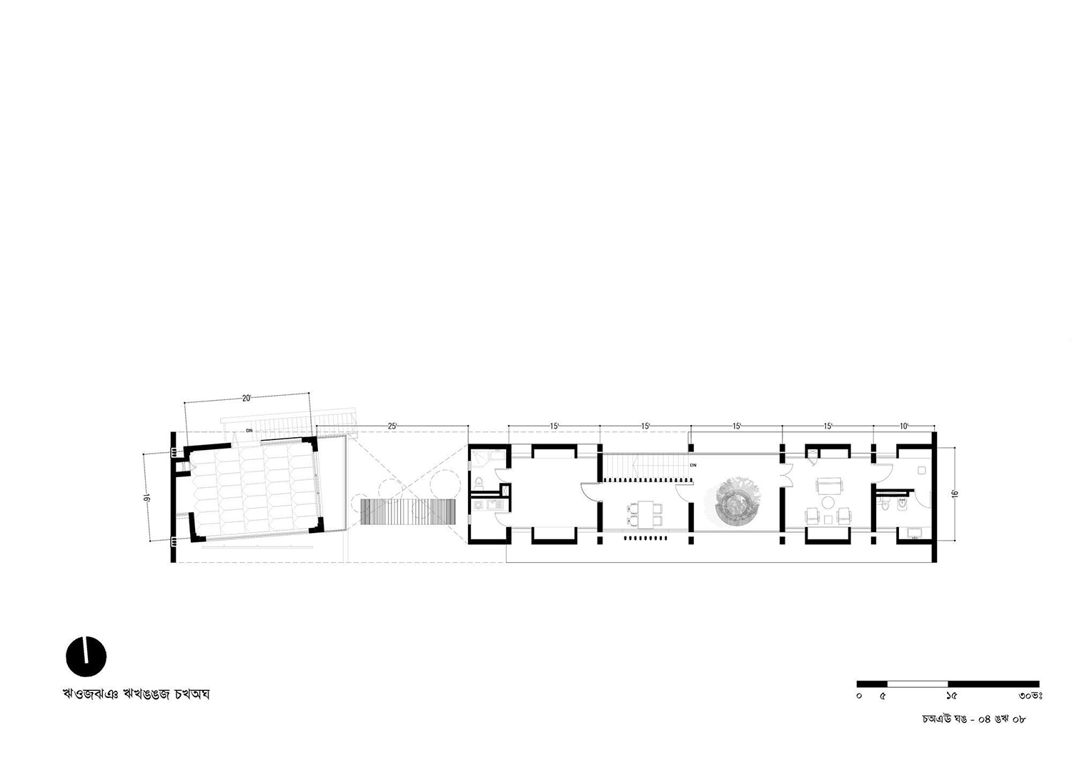
One of the special features of the project is the main gatehouse, which houses the mosque, office, mortuary, and other supporting facilities for the graveyard. The gatehouse structure was designed linearly so that the structure blends with the surrounding nature. Additionally, the structure was made to feel light and open by the use of full-height glass windows.
Another feature is the boundary wall. The boundary was transformed into a work of calligraphy inspired from the Arabic word for “Allah”. The wall is lined with plants like kolaboti (canna indica) and katamehedi (duranta repens) which creates contrast with the monochrome wall and merges the wall with the landscape.
- Client
Dhaka North City Corporation (DNCC)
- Location
Banani, Dhaka
- Project Team
Ar. Md. Iqbal Habib ( Team Leader)
Ar.Md. Ishtiaque Zahir
Ar. Nuruzzaman
Ar.Md. Ishtiaque Zahir
Ar. Nuruzzaman
- Urban Planner
Fazle Reza Suman
- Landscape Architect
Syeda Tuhin Ara Karim
- Structural Engineer
Md. Tofazzel Hossain
- Electrical Engineer
Mohd. Fakrul Alam
- Project Timeline
2017
- Photo Courtesy
Maruf Raihan
Project Gallery
Drawings
Video